文京区の不動産売買・賃貸|実用春日ホーム > 物件一覧 > TER SOI.

TER SOI.

TER SOI.

徒歩9分の距離に東京都立小石川中等教育学校があるのも魅力。徒歩5分に駅がある物件です。こちらはマンションタイプになります。共用部には敷地内ごみ置き場・エレベータなどが揃っており、とても充実しています。「(仮称)千石4丁目共同住宅」のここがイチオシ。当社スタッフが文京区地域の不動産情報をご提供いたします。細かい条件を指定してinfo12@jkhome.comまでご連絡ください。

情報の見方

所在地 東京都文京区千石4丁目35-11 通学区域(小学校) 文京区立林町小学校
交通
賃料 31万円 管理費 5,000円
面積 71.80㎡ 築年月(築年数) 2026年 1月 ( 予定 )
種別/構造 マンション / 鉄筋コンクリート 階建 4階建
設備条件
  • 保証人不要
  • ファミリー向け
  • 室内洗濯機置場
  • フローリング
  • バルコニー
  • 都市ガス
  • エレベーター
  • 敷地内ごみ置き場
  • ガスコンロ
  • コンロ2口以上
  • システムキッチン
  • 対面式キッチン
  • コンロ3口
  • カウンターキッチン
  • バス・トイレ別
  • 追焚機能浴室
  • 浴室乾燥機
  • 独立洗面台
  • エアコン
  • シューズボックス
  • インターネット対応
  • TVモニタ付インターホン
備考 ファミリーマート 本駒込六丁目店まで徒歩4分と近場にコンビニがあるのもポイント。こちらはマンションタイプになります。ニーズの高い、令和8年築の物件で、オシャレな室内が魅力的。共用部にはエレベータ・敷地内ごみ置き場などが備わっておりとても充実しています。「TER SOI.」のここがイチオシ。実用根津ホーム根津駅前センターがお勧めする、都営三田線千石周辺の物件の見学をご希望の方は03-3822-6150やinfo12@jkhome.comからお願いします。
取扱会社
  • 根津駅前センター(実用根津ホーム株式会社 根津駅前センター)
  • 東京都文京区根津1丁目1-14 東京堂Sビル1F
  • TEL:03-3822-6150
  • 東京都知事 (1) 第108689号
  • (公社)東京都宅地建物取引業協会

PHOTO 写真

【その他】

【その他】

【その他】

TER SOI.

【その他】

【その他】

ROOM この物件の部屋情報

所在階 賃料 管理費 敷金/礼金 間取り 面積 詳細
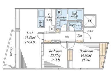
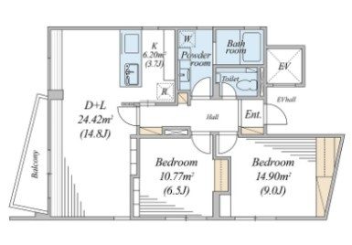
3階 31万円 5,000円 1ヶ月/1ヶ月 2LDK 71.80㎡

もっと見る

TER SOI.の画像

TER SOI.

【間取り】

【その他】

【間取り】
【その他】
所在地:
東京都文京区千石4丁目35-11
賃料:
31万円
管理費:
5,000円
敷金:
1ヶ月
礼金:
1ヶ月
担当:
実用根津ホーム(株)根津駅前センター
間取り:
2LDK
所在階:
3階
築年:
予定
交通:
  • 都営三田線千石」駅 徒歩5分
  • 山手線巣鴨」駅 徒歩7分
  • 丸ノ内線新大塚」駅 徒歩15分
  • close

    2026年2月入居の新築マンション

    80平米超のゆったりとした2LDKタイプ 周辺環境も良く、買い物至便 さらには都心へのアクセスも良好です。

    根津駅前センター(実用根津ホーム株式会社 根津駅前センター) スタッフ小西

    最新空室情報 お問い合わせください!

    LOCATION 周辺地図

    ※地図上に表示される物件の位置は付近住所に所在することを表すものであり、実際の物件所在地とは異なる場合がございます。

    VICINITIES 周辺施設

    • 大和郷幼稚園

      大和郷幼稚園
      約496m/7分

    • ベネッセ千石保育園

      ベネッセ千石保育園
      約207m/3分

    • 文京区立林町小学校

      文京区立林町小学校
      約706m/9分

    • 東京都立小石川中等教育学校

      東京都立小石川中等教育学校
      約649m/9分

    • 東洋大学 白山キャンパス

      東洋大学 白山キャンパス
      約1197m/15分

    • ドトールコーヒーショップ 駒込南口店

      ドトールコーヒーショップ 駒込南口店
      約1017m/13分

    • フレッシュネスバーガー千石駅前店

      フレッシュネスバーガー千石駅前店
      約513m/7分

    • かごの屋 文京千石店

      かごの屋 文京千石店
      約489m/7分

    • 文京宮下公園

      文京宮下公園
      約327m/5分

    • 東京大学総合研究博物館小石川分館

      東京大学総合研究博物館小石川分館
      約1101m/14分

    • 六義園

      六義園
      約1140m/15分

    • マルエツ プチ 千石店

      マルエツ プチ 千石店
      約430m/6分

    • 文京グリーンコート

      文京グリーンコート
      約761m/10分

    • ローソンストア100 文京千石四丁目店

      ローソンストア100 文京千石四丁目店
      約239m/3分

    • ファミリーマート 本駒込六丁目店

      ファミリーマート 本駒込六丁目店
      約271m/4分

    • 東京都立大塚病院

      東京都立大塚病院
      約1191m/15分

    CONTACT この物件に関するお問い合わせ

    必要項目の入力

    0/0
    必須項目完了

    確認画面へ
    お進み下さい

    0/0
    必須項目完了

    確認画面へ
    お進み下さい

    必須

    お名前

    任意

    電話番号

    必須

    メールアドレス

    必須

    内容

    【TER SOI.へのお問い合わせ】

    未入力項目があります

    トップへ戻る

    来店予約