文京区の不動産売買・賃貸|実用春日ホーム > (事業用(賃貸))路線・駅から探す > 東京メトロ千代田線 > 西日暮里駅の賃貸物件

西日暮里駅物件一覧

検索結果

7件が該当

表示
新着順
  • 新着順
  • 安い順
  • 高い順
  • おすすめ順
  • 住所ごと順
  • 専有面積が広い順
  • 築年数が新しい順
30件
  • 10件
  • 20件
  • 30件

リュクサンブール道灌山の画像

リュクサンブール道灌山の画像
close

リュクサンブール道灌山 101

[賃貸店舗]

所在地:
東京都文京区千駄木3丁目48-8
賃料:
21.89万円
管理費:
7,700円
敷金:
2ヶ月
礼金:
1ヶ月
間取り:
- (25.35㎡)
所在階:
1階
築年:
予定
交通:
  • 山手線西日暮里」駅 徒歩5分
  • 千代田線西日暮里」駅 徒歩5分
  • 千代田線千駄木」駅 徒歩8分
  • リュクサンブール道灌山の画像

    リュクサンブール道灌山 101

    【外観】

    【間取り】

    【外観】
    【間取り】
    所在地:
    東京都文京区千駄木3丁目48-8
    賃料:
    21.89万円
    管理費:
    7,700円
    敷金:
    2ヶ月
    礼金:
    1ヶ月
    担当:
    根津駅前センター(実用根津ホーム株式会社 根津駅前センター) スタッフ小西
    間取り:
    - (25.35㎡)
    所在階:
    1階
    築年:
    予定
    交通:
  • 山手線西日暮里」駅 徒歩5分
  • 千代田線西日暮里」駅 徒歩5分
  • 千代田線千駄木」駅 徒歩8分
  • close

    道灌山通りに面しています

    視認性の良い1階店舗が募集開始 軽飲食店も相談にのれます。 (軽飲食店・サロン・美容室・物販・ショールームに最適)

    根津駅前センター(実用根津ホーム株式会社 根津駅前センター) スタッフ小西

    チアーズ千駄木の画像

    チアーズ千駄木の画像
    close

    チアーズ千駄木 1階

    [賃貸店舗]

    所在地:
    東京都文京区千駄木4丁目1-20
    賃料:
    28.5万円
    管理費:
    -
    敷金:
    -
    礼金:
    1.1ヶ月
    間取り:
    - (44.10㎡)
    所在階:
    1階
    築年:
    築1年未満
    交通:
  • 山手線西日暮里」駅 徒歩8分
  • 千代田線西日暮里」駅 徒歩9分
  • 山手線田端」駅 徒歩13分
  • チアーズ千駄木の画像

    チアーズ千駄木 1階

    【外観】

    【間取り】

    【外観】
    【間取り】
    所在地:
    東京都文京区千駄木4丁目1-20
    賃料:
    28.5万円
    管理費:
    -
    敷金:
    -
    礼金:
    1.1ヶ月
    担当:
    根津駅前センター(実用根津ホーム株式会社 根津駅前センター) スタッフ小西
    間取り:
    - (44.10㎡)
    所在階:
    1階
    築年:
    築1年未満
    交通:
  • 山手線西日暮里」駅 徒歩8分
  • 千代田線西日暮里」駅 徒歩9分
  • 山手線田端」駅 徒歩13分
  • close

    不忍通りの路面店(軽飲食相談可能)

    視認性の良い路面店

    根津駅前センター(実用根津ホーム株式会社 根津駅前センター) スタッフ小西

    谷中3丁目店舗・事務所の画像

    谷中3丁目店舗・事務所の画像
    close

    谷中3丁目店舗・事務所

    [賃貸店舗]

    所在地:
    東京都台東区谷中3丁目10-19
    賃料:
    27.5万円
    管理費:
    -
    敷金:
    6ヶ月
    礼金:
    1.1ヶ月
    間取り:
    - (81.01㎡)
    所在階:
    地下1-2階
    築年:
    築51年
    交通:
  • 山手線日暮里」駅 徒歩5分
  • 千代田線千駄木」駅 徒歩6分
  • 山手線西日暮里」駅 徒歩10分
  • 谷中3丁目店舗・事務所の画像

    谷中3丁目店舗・事務所

    【外観】

    【間取り】

    【外観】
    【間取り】
    所在地:
    東京都台東区谷中3丁目10-19
    賃料:
    27.5万円
    管理費:
    -
    敷金:
    6ヶ月
    礼金:
    1.1ヶ月
    担当:
    根津駅前センター(実用根津ホーム株式会社 根津駅前センター) スタッフ小西
    間取り:
    - (81.01㎡)
    所在階:
    地下1-2階
    築年:
    築51年
    交通:
  • 山手線日暮里」駅 徒歩5分
  • 千代田線千駄木」駅 徒歩6分
  • 山手線西日暮里」駅 徒歩10分
  • close

    観光客で賑わう谷根千エリア

    谷中銀座商店街まで徒歩1分の好立地 物販・サービス業、軽飲食店(相談)に最適 風情ある街並みが人気です。

    根津駅前センター(実用根津ホーム株式会社 根津駅前センター) スタッフ小西

    パレ・ドール千駄木Ⅱの画像

    パレ・ドール千駄木Ⅱの画像
    close

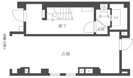
    パレ・ドール千駄木Ⅱ 101

    [賃貸店舗]

    所在地:
    東京都文京区千駄木3丁目44-9
    賃料:
    31.9万円
    管理費:
    -
    敷金:
    0ヶ月
    礼金:
    0万円
    間取り:
    - (52.97㎡)
    所在階:
    1階
    築年:
    -
    交通:
  • 千代田線千駄木」駅 徒歩5分
  • 山手線西日暮里」駅 徒歩8分
  • 山手線日暮里」駅 徒歩10分
  • パレ・ドール千駄木Ⅱの画像

    パレ・ドール千駄木Ⅱ 101

    【外観】

    【間取り】

    【外観】
    【間取り】
    所在地:
    東京都文京区千駄木3丁目44-9
    賃料:
    31.9万円
    管理費:
    -
    敷金:
    0ヶ月
    礼金:
    0万円
    担当:
    根津駅前センター(実用根津ホーム株式会社 根津駅前センター) スタッフ小西
    間取り:
    - (52.97㎡)
    所在階:
    1階
    築年:
    -
    交通:
  • 千代田線千駄木」駅 徒歩5分
  • 山手線西日暮里」駅 徒歩8分
  • 山手線日暮里」駅 徒歩10分
  • close

    軽飲食相談可能の路面店

    人で賑わうよみせ通りの路面店 軽飲食相談可能 ・営業時間8時から23時まで

    根津駅前センター(実用根津ホーム株式会社 根津駅前センター) スタッフ小西

    cobaco sendagiの画像

    cobaco sendagiの画像
    close

    cobaco sendagi

    [賃貸店舗]

    所在地:
    東京都文京区千駄木4丁目1-14
    賃料:
    34.65万円
    管理費:
    -
    敷金:
    5ヶ月
    礼金:
    1.1ヶ月
    間取り:
    - (46.00㎡)
    所在階:
    1-2階
    築年:
    -
    交通:
  • 山手線西日暮里」駅 徒歩10分
  • 千代田線千駄木」駅 徒歩10分
  • 山手線田端」駅 徒歩13分
  • cobaco sendagiの画像

    cobaco sendagi

    【外観】

    【間取り】

    【内装】

    【キッチン】

    【トイレ】

    【内装】

    【内装】

    【外観】
    【間取り】
    【内装】
    【キッチン】
    【トイレ】
    【内装】
    【内装】
    所在地:
    東京都文京区千駄木4丁目1-14
    賃料:
    34.65万円
    管理費:
    -
    敷金:
    5ヶ月
    礼金:
    1.1ヶ月
    担当:
    根津駅前センター(実用根津ホーム株式会社 根津駅前センター) スタッフ小西
    間取り:
    - (46.00㎡)
    所在階:
    1-2階
    築年:
    -
    交通:
  • 山手線西日暮里」駅 徒歩10分
  • 千代田線千駄木」駅 徒歩10分
  • 山手線田端」駅 徒歩13分
  • close

    飲食店相談可能な一括物件

    買い物施設がそろう千駄木4丁目エリアから 新築2階建ての店舗が登場

    根津駅前センター(実用根津ホーム株式会社 根津駅前センター) スタッフ小西

    Yaneco Terraceの画像

    Yaneco Terraceの画像
    close

    Yaneco Terrace 03

    [賃貸店舗]

    所在地:
    東京都台東区谷中5丁目4-9
    賃料:
    13.86万円
    管理費:
    8,800円
    敷金:
    6ヶ月
    礼金:
    0ヶ月
    間取り:
    - (18.02㎡)
    所在階:
    1階
    築年:
    築1年未満
    交通:
  • 千代田線千駄木」駅 徒歩5分
  • 山手線日暮里」駅 徒歩10分
  • 山手線西日暮里」駅 徒歩14分
  • Yaneco Terraceの画像

    Yaneco Terrace 03

    【間取り】

    【外観】

    【間取り】
    【外観】
    所在地:
    東京都台東区谷中5丁目4-9
    賃料:
    13.86万円
    管理費:
    8,800円
    敷金:
    6ヶ月
    礼金:
    0ヶ月
    担当:
    根津駅前センター(実用根津ホーム株式会社 根津駅前センター) スタッフ小西
    間取り:
    - (18.02㎡)
    所在階:
    1階
    築年:
    築1年未満
    交通:
  • 千代田線千駄木」駅 徒歩5分
  • 山手線日暮里」駅 徒歩10分
  • 山手線西日暮里」駅 徒歩14分
  • close

    一括での利用も可能です 物販店に最適です

    3部屋同時募集(一括もしくは2区画利用も相談可能) 01号室 面積:27.52㎡ 家賃:215,600円 02号室 面積:45.54㎡ 家賃:363,000円  03号室 面積:18.02㎡ 家賃:138,600円 

    根津駅前センター(実用根津ホーム株式会社 根津駅前センター) スタッフ小西

    ノリビルⅡの画像

    ノリビルⅡの画像
    close

    ノリビルⅡ 1階

    [賃貸店舗]

    所在地:
    東京都文京区千駄木3丁目34-7
    賃料:
    26.4万円
    管理費:
    11,000円
    敷金:
    6ヶ月
    礼金:
    1.1ヶ月
    間取り:
    - (33.84㎡)
    所在階:
    1階
    築年:
    築51年
    交通:
  • 千代田線千駄木」駅 徒歩1分
  • 山手線日暮里」駅 徒歩11分
  • 山手線西日暮里」駅 徒歩12分
  • ノリビルⅡの画像

    ノリビルⅡ 1階

    【外観】

    【間取り】

    【外観】
    【間取り】
    所在地:
    東京都文京区千駄木3丁目34-7
    賃料:
    26.4万円
    管理費:
    11,000円
    敷金:
    6ヶ月
    礼金:
    1.1ヶ月
    担当:
    根津駅前センター(実用根津ホーム株式会社 根津駅前センター) スタッフ鈴木
    間取り:
    - (33.84㎡)
    所在階:
    1階
    築年:
    築51年
    交通:
  • 千代田線千駄木」駅 徒歩1分
  • 山手線日暮里」駅 徒歩11分
  • 山手線西日暮里」駅 徒歩12分
  • close

    ★駅チカ事務所・店舗★大通り沿い★軽飲食店相談可★

    千駄木駅から徒歩1分の店舗・事務所が募集中! 不忍通り沿いで10坪以上! 飲食店など諸条件相談可♪ 物件詳細やその他ご不明点等ぜひお気軽にお問い合わせください!

    根津駅前センター(実用根津ホーム株式会社 根津駅前センター) スタッフ鈴木

    詳細条件

    物件種別
    賃料

    下限なし

    • 下限なし
    • 10万円以上
    • 20万円以上
    • 30万円以上
    • 40万円以上
    • 50万円以上
    • 60万円以上
    • 70万円以上
    • 80万円以上
    • 90万円以上
    • 100万円以上
    • 150万円以上
    • 200万円以上
    • 300万円以上
    • 400万円以上
    • 500万円以上
    • 下限なし

    上限なし

    • 上限なし
    • 10万円以下
    • 20万円以下
    • 30万円以下
    • 40万円以下
    • 50万円以下
    • 60万円以下
    • 70万円以下
    • 80万円以下
    • 90万円以下
    • 100万円以下
    • 150万円以下
    • 200万円以下
    • 300万円以下
    • 400万円以下
    • 500万円以下
    • 上限なし
    間取り

    間取り

    close
    面積

    下限なし

    • 下限なし
    • 15㎡以上
    • 20㎡以上
    • 25㎡以上
    • 30㎡以上
    • 35㎡以上
    • 40㎡以上
    • 50㎡以上
    • 60㎡以上
    • 70㎡以上
    • 80㎡以上
    • 90㎡以上
    • 100㎡以上
    • 110㎡以上
    • 120㎡以上
    • 130㎡以上
    • 140㎡以上
    • 150㎡以上
    • 160㎡以上
    • 170㎡以上
    • 180㎡以上
    • 190㎡以上
    • 200㎡以上
    • 250㎡以上
    • 300㎡以上
    • 400㎡以上
    • 下限なし

    上限なし

    • 上限なし
    • 15㎡以下
    • 20㎡以下
    • 25㎡以下
    • 30㎡以下
    • 35㎡以下
    • 40㎡以下
    • 50㎡以下
    • 60㎡以下
    • 70㎡以下
    • 80㎡以下
    • 90㎡以下
    • 100㎡以下
    • 110㎡以下
    • 120㎡以下
    • 130㎡以下
    • 140㎡以下
    • 150㎡以下
    • 160㎡以下
    • 170㎡以下
    • 180㎡以下
    • 190㎡以下
    • 200㎡以下
    • 250㎡以下
    • 300㎡以下
    • 400㎡以下
    • 上限なし
    駅からの徒歩

    指定しない

    • 指定しない
    • 1分以内
    • 5分以内
    • 7分以内
    • 10分以内
    • 15分以内
    • 20分以内
    • 指定しない
    築年数

    指定しない

    • 指定しない
    • 1年以内
    • 3年以内
    • 5年以内
    • 7年以内
    • 10年以内
    • 15年以内
    • 20年以内
    • 指定しない
    情報公開日

    指定しない

    • 指定しない
    • 本日
    • 3日以内
    • 1週間以内
    こだわり条件

    こだわり条件

    close

    選択中の物件でお問い合わせ

    トップへ戻る

    町名から探す
    小石川 千駄木 本駒込 千石 湯島 大塚 池之端 白山 水道 根津
    路線から探す
    南北線 丸ノ内線 都営三田線 都営大江戸線 千代田線 山手線 有楽町線 京浜東北線 総武線 京成本線
    駅から探す
    後楽園 茗荷谷 千駄木 江戸川橋 根津 東大前 白山 護国寺 本駒込 西日暮里

    来店予約