文京区の不動産売買・賃貸|実用春日ホーム > 物件一覧 > プレイス・カサレリア

プレイス・カサレリア

プレイス・カサレリア

【プレイスカサレリア】
鉄筋コンクリート造8階建て
1998年8月築の建物となっております。

周辺環境も大変良好です!
室内も大変キレイですので、
ぜひ一度内見されてはいかがでしょうか。

情報の見方

所在地 東京都荒川区東尾久1丁目1-2 通学区域(小学校) -
交通
賃料 28.5万円 管理費 10,000円
面積 99.84㎡ 築年月(築年数) 1998年 8月 ( 築27年 )
種別/構造 マンション / 鉄筋コンクリート 階建 8階建
設備条件
  • 室内洗濯機置場
  • 都市ガス
  • エレベーター
  • ガスコンロ
  • コンロ2口以上
  • システムキッチン
  • 対面式キッチン
  • コンロ3口
  • カウンターキッチン
  • バス・トイレ別
  • 追焚機能浴室
  • 浴室乾燥機
  • 温水洗浄便座
  • 独立洗面台
  • エアコン
  • オートロック
取扱会社
  • 実用春日ホーム 千駄木店
  • 東京都文京区千駄木2丁目33-10 
  • TEL:03-5809-0691
  • 東京都知事 (6) 第78096号

PHOTO 写真

【外観】

【外観】

【居間・リビング】

【居間・リビング】

【キッチン】

【キッチン】

【和室】

【和室】

【浴室】

【浴室】

【収納】

【収納】

【洗面所】

【洗面所】

【トイレ】

【トイレ】

【玄関】

【玄関】

【外観】
【居間・リビング】
【キッチン】
【和室】
【浴室】
【収納】
【洗面所】
【トイレ】
【玄関】

プレイス・カサレリア

【外観】

【外観】

【居間・リビング】

【居間・リビング】

【キッチン】

【キッチン】

【和室】

【和室】

【浴室】

【浴室】

【収納】

【収納】

【洗面所】

【洗面所】

【トイレ】

【トイレ】

【玄関】

【玄関】

ROOM この物件の部屋情報

所在階 賃料 管理費 敷金/礼金 間取り 面積 詳細
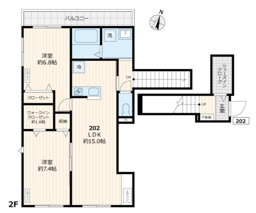
6階 28.5万円 10,000円 1ヶ月/0ヶ月 2LDK 99.84㎡

もっと見る

プレイス・カサレリアの画像

プレイス・カサレリア

【外観】

【間取り】

【居間・リビング】

【キッチン】

【和室】

【浴室】

【収納】

【洗面所】

【トイレ】

【玄関】

【外観】
【間取り】
【居間・リビング】
【キッチン】
【和室】
【浴室】
【収納】
【洗面所】
【トイレ】
【玄関】
所在地:
東京都荒川区東尾久1丁目1-2
賃料:
28.5万円
管理費:
10,000円
敷金:
1ヶ月
礼金:
0ヶ月
担当:
実用春日ホーム(株)千駄木店
間取り:
2LDK
所在階:
6階
築年:
築27年
交通:
  • 山手線西日暮里」駅 徒歩10分
  • 千代田線町屋」駅 徒歩9分
  • 京成本線新三河島」駅 徒歩3分
  • close

    ★カウンターキッチン完備2SLDK★「西日暮里」駅徒歩10分、「新三河島」駅徒歩2分!

    ご覧いただきありがとうございます! ファミリー様必見のご住まいご紹介いたします! 京成本線「新三河島」駅徒歩2分 JR山手線「西日暮里」駅徒歩10分 100㎡越えの2SLDKのお部屋です! カウンターキッチンより、 お子様を安心して見届けることが可能ございます! オートロックの6階なので、セキュリティ面に不安はないでしょう。 また、周辺環境にも、まず困らないでしょう。 コンビニ・スーパー・ドラッグストアは、 どの方向にお出かけしても、必ずございます。 ご期待通りの物件になっているかと思います。 ぜひ一度ご内見されてはいかがでしょうか!!

    実用春日ホーム 千駄木店 今井隼斗

    過去に掲載したお部屋

    所在階 賃料 管理費 敷金 礼金 間取り 面積 詳細
    7階 ***万円 *** *** *** *** ***

    詳細を見る

    7階 ***万円 *** *** *** *** ***

    詳細を見る

    最新空室情報 お問い合わせください!

    LOCATION 周辺地図

    ※地図上に表示される物件の位置は付近住所に所在することを表すものであり、実際の物件所在地とは異なる場合がございます。

    VICINITIES 周辺施設

    • タリーズコーヒー 日暮里店

      タリーズコーヒー 日暮里店
      約1340m/17分

    • ドトールコーヒー

      ドトールコーヒー
      約907m/12分

    • マクドナルド

      マクドナルド
      約913m/12分

    • BOOK OFF 千駄木店

      BOOK OFF 千駄木店
      約1673m/21分

    • セブンイレブン

      セブンイレブン
      約375m/5分

    • 関川病院

      関川病院
      約682m/9分

    • みずほ銀行・尾久支店

      みずほ銀行・尾久支店
      約460m/6分

    • 西日暮里郵便局

      西日暮里郵便局
      約427m/6分

    • 団子坂交番

      団子坂交番
      約1815m/23分

    • なかね歯科 道灌山

      なかね歯科 道灌山
      約1605m/21分

    • 荒川区立ひぐらし小学校

      荒川区立ひぐらし小学校
      約865m/11分

    CONTACT この物件に関するお問い合わせ

    必要項目の入力

    0/0
    必須項目完了

    確認画面へ
    お進み下さい

    0/0
    必須項目完了

    確認画面へ
    お進み下さい

    必須

    お名前

    任意

    電話番号

    必須

    メールアドレス

    必須

    内容

    【プレイス・カサレリアへのお問い合わせ】

    未入力項目があります

    トップへ戻る

    来店予約