文京区の不動産売買・賃貸|実用春日ホーム > 物件一覧 > コンドミニアム千駄木

コンドミニアム千駄木

コンドミニアム千駄木

地上10階建てのこの物件なら景色もバッチリです。2駅利用可物件なので、よく電車を利用する方にピッタリですね。こちらはマンションタイプになります。バス停徒歩3分以内なので利便性が高く外出にも便利です。当社スタッフが地域の賃貸情報をご提供いたします。お客様のこだわりやご要望などございましたら、お気軽に当社へお問い合わせ下さい。

情報の見方

所在地 東京都文京区千駄木2丁目36-11 通学区域(小学校) -
交通
賃料 2,280万円 管理費 9,500円
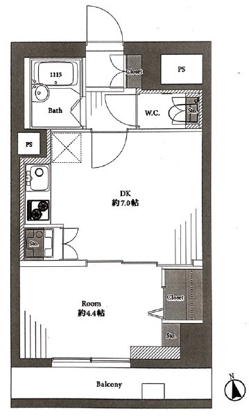
面積 27.85㎡ 築年月(築年数) 1979年 3月 ( 築47年 )
種別/構造 マンション / 鉄筋コンクリート 階建 10階建
設備条件
  • リフォーム済
  • カップル向け
  • 室内洗濯機置場
  • フローリング
  • 都市ガス
  • 公営水道
  • 公共下水
  • エレベーター
  • ガスコンロ
  • コンロ2口以上
  • システムキッチン
  • 対面式キッチン
  • カウンターキッチン
  • バス・トイレ別
  • 浴室乾燥機
  • 温水洗浄便座
  • シャワー
  • エアコン
  • シューズボックス
  • CS
  • BS
  • CATV
  • インターネット対応
  • オートロック
  • TVモニタ付インターホン
  • 24時間ゴミ出し可
備考 須藤公園が物件から487mのところにあります。バス停まで徒歩3分以内で行けるのでアクセスが広がります。物件は地上10階建て。プライバシーをしっかり守れる、安心安全なマンションです。賃貸物件のことなら、当社にお任せ下さい。当社は文京区に特化し、豊富な賃貸物件情報を取り扱っております。お客様のニーズに合わせて物件のご紹介を致しますので、ぜひお気軽にご連絡下さい。
取扱会社
  • 根津駅前センター(実用根津ホーム株式会社 根津駅前センター)
  • 東京都文京区根津1丁目1-14 東京堂Sビル1F
  • TEL:03-3822-6150
  • 東京都知事 (1) 第108689号
  • (公社)東京都宅地建物取引業協会

PHOTO 写真

【外観】

【外観】

【エントランス】

【エントランス】

【その他共用部分】

【その他共用部分】

【外観】
【エントランス】
【その他共用部分】

コンドミニアム千駄木

【外観】

【外観】

【エントランス】

【エントランス】

【その他共用部分】

【その他共用部分】

ROOM この物件の部屋情報

所在階 賃料 管理費 敷金/礼金 間取り 面積 詳細
1階 2,280万円 9,500円 -/- 1DK 27.85㎡

もっと見る

コンドミニアム千駄木の画像

コンドミニアム千駄木

【外観】

【間取り】

【外観】
【間取り】
所在地:
東京都文京区千駄木2丁目26-7
賃料:
2,280万円
管理費:
9,500円
敷金:
-
礼金:
-
担当:
実用根津ホーム(株)根津駅前センター
間取り:
1DK
所在階:
1階
築年:
築47年
交通:
  • 千代田線千駄木」駅 徒歩3分
  • 南北線本駒込」駅 徒歩13分
  • 山手線日暮里」駅 徒歩15分
  • close

    投資として向いているお部屋です

    人気の谷根千エリアから投資向きマンションのご紹介 駅まで徒歩2分の好立地 室内は平成27年にフルリノベション済 バストイレ別のため人気があります。 また、ダイニングも7帖あり、単身者、2人入居でも対応可能なお部屋です。

    根津駅前センター(実用根津ホーム株式会社 根津駅前センター) スタッフ小西

    過去に掲載したお部屋

    所在階 賃料 管理費 敷金 礼金 間取り 面積 詳細
    1階 ***万円 *** *** *** *** ***

    詳細を見る

    3階 ***万円 *** *** *** *** ***

    詳細を見る

    7階 ***万円 *** *** *** *** ***

    詳細を見る

    - ***万円 *** *** *** *** ***

    詳細を見る

    - ***万円 *** *** *** *** ***

    詳細を見る

    9階 ***万円 *** *** *** *** ***

    詳細を見る

    最新空室情報 お問い合わせください!

    LOCATION 周辺地図

    ※地図上に表示される物件の位置は付近住所に所在することを表すものであり、実際の物件所在地とは異なる場合がございます。

    VICINITIES 周辺施設

    • サンマルクカフェ 千駄木支店

      サンマルクカフェ 千駄木支店
      約264m/4分

    • なか卵 千駄木店

      なか卵 千駄木店
      約159m/2分

    • 松屋 千駄木店

      松屋 千駄木店
      約219m/3分

    • モスバーガー千駄木店

      モスバーガー千駄木店
      約154m/2分

    • 根津のたい焼き

      根津のたい焼き
      約517m/7分

    • 須藤公園

      須藤公園
      約487m/7分

    CONTACT この物件に関するお問い合わせ

    必要項目の入力

    0/0
    必須項目完了

    確認画面へ
    お進み下さい

    0/0
    必須項目完了

    確認画面へ
    お進み下さい

    必須

    お名前

    任意

    電話番号

    必須

    メールアドレス

    必須

    内容

    【コンドミニアム千駄木へのお問い合わせ】

    未入力項目があります

    トップへ戻る

    来店予約